SEE ALL PHOTOS

99 Hatch St$469,900For Sale

$469,900
For Sale
NEXT
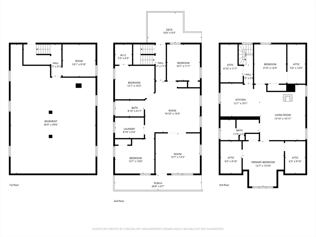
Fantastic opportunity to own a versatile two-family property directly across from the Hatch Street Studios. Priced under assessed value. The first floor unit has been recently refreshed with new drywall, fresh paint, and new flooring and offers a spacious layout including two bedrooms, a full bath, a den with closet, galley kitchen, dining room, and living room. Heated by natural gas baseboard, this unit is move-in ready and ideal for an owner-occupant. The walk-up second floor unit features two bedrooms, a full bath, kitchen, and living room and is heated by a large space heater. It offers excellent upside potential and is ready for updates to maximize value. The property also includes a large, dry walk-out basement with a finished office heated by electric, perfect for storage, workspace, or added functionality. Enjoy outdoor living with a wood deck, granite patio, and a nicely fenced backyard, plus off-street parking with a paved driveway.

4
beds

2
baths

1,914 Sq.Ft. LIVING AREA

0.08 Sq.Ft. lot

Features & Amenities

Interior

  • total bedrooms4
  • Total bathrooms2
  • full bathrooms2
  • Laundry room Gas Dryer Hookup, Electric Dryer Hookup, Washer Hookup
  • Flooring Wood, Vinyl, Carpet, Hardwood
  • APPLIANCES Range, Refrigerator, Other
  • other interior Features Ceiling Fan(s), Storage, Bathroom With Tub Shower, Remodeled, Internet Available - Unknown, Other, Living Room, Dining Room, Kitchen, Office/Den

Area & Lot

  • Status For Sale
  • Living Area1,914 Sq.Ft.
  • Total Area1,914 Sq.Ft.
  • Lot Area0.08 Sq.Ft.
  • MLS® ID73471327
  • TypeMulti-Family
  • YEAR BUILT1925
  • View DescriptionCity View(s), City

Exterior

  • STORIES2
  • water SourcePublic
  • utilitiesfor Electric Range, for Gas Dryer, for Electric Dryer, Washer Hookup
  • roofShingle
  • lot featuresLevel
  • parkingPaved Drive, Shared Driveway, Off Street, Tandem, Driveway, Paved
  • HEAT TYPEBaseboard, Natural Gas, Space Heater
  • sewerPublic Sewer
  • SubstructureBlock, Stone, Granite
  • other exterior FeaturesBalcony/Deck, Rain Gutters, Garden

Financial

  • Sales Price$469,900
  • Real Estate Tax $5,442/yr
  • Zoning RB

Work With Casey

Buying or selling a home can be intimating but Casey works diligently to educate her clients with the knowledge they need to be confident moving forward with their decision.